object(stdClass)#4756 (3) { ["error_message"]=> string(159) "This IP, site or mobile application is not authorized to use this API key. Request received from IP address fda3:e722:ac3:10:63:4ff5:a77:57, with empty referer" ["results"]=> array(0) { } ["status"]=> string(14) "REQUEST_DENIED" } 1h, k, wc, varasto Hämeenlinna Matti Alangon katu 1 - Ässä : Ässä

1h, k, wc, varasto Hämeenlinna Matti Alangon katu 1

Kauriala, Hämeenlinna
  • Pinta-ala 108 m²
  • Talotyyppi liiketila
  • Rakennusvuosi 1983
65 000 €

1h, k, wc, varasto Hämeenlinna Matti Alangon katu 1

Yksikerroksinen katutason liiketila hyvällä sijainnilla!

Lisätietoja ja esittelyt:
Harri Keskitalo
040 749 7171


Perustiedot

  • Kohdenumero21415704
  • Kaupunginosa/kyläKauriala
  • KatuosoiteMatti Alangon katu 1
  • Postinumero13130
  • KaupunkiHämeenlinna
  • Tyyppiliiketila
  • Omistusmuotooma
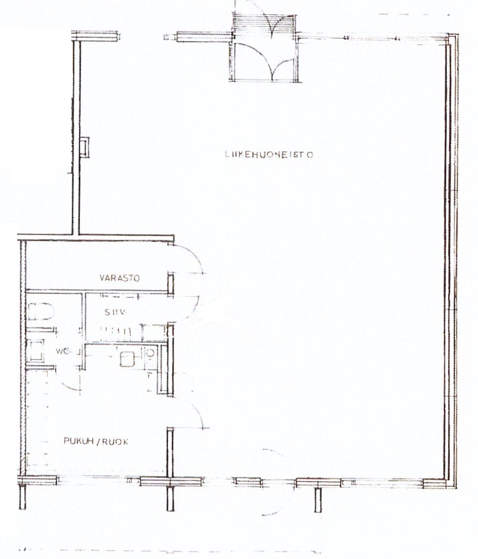
  • Huoneistoselitelmä1h, k, wc, varasto
  • Asuinpinta-ala m²108
  • Yhteensä m²108
  • Kerros1
  • Kerroksia3
  • Rakennusvuosi (päättynyt)1983
  • Käyttöönottovuosi1983
  • Vapautuminensopimuksen mukaan

Kiinnostuitko?

Jätä yhteystietosi tai ole suoraan välittäjään yhteydessä.
  • This field is hidden when viewing the form

Hintatiedot

  • Velaton hinta65000
  • Myyntihinta49870.94
  • Velkaosuus15129.06
  • Yhtiövastike819.75
  • Rahoitusvastike145.83
  • Hoitovastike673.92
  • Vesimaksu (€/kk)55.9
  • Autopaikkamaksu15

Lisätiedot

  • Lisätieto-ominaisuudet: kaapeli-tv
  • Lämmitysjärjestelmä: kaukolämpö
  • Yleiskuntotyydyttävä
  • EnergialuokkaC2018

Taloyhtiön tiedot

  • Isännöitsijän yhteystiedotRetta Hämeenlinna Raatihuoneenkatu 17, 13100 Hämeenlinna Janne Kuittinen
  • Taloyhtiössä: urheiluvälinevarasto
    väestönsuoja
    Huoneistokohtaiset varastot
  • EnergialuokkaC2018
  • (Taloyhtiön) Rakennukseen tehdyt korjaukset ja remontit2000 Ikkunanpuitteet ja vesipellit maalattu sekä ilmastointihormit nuohottu, 2002 Talovahvistin kaksisuuntainen, 2003 Ikkunat uusittu, 2007 Vesikatto uusittu, 2009 Porraskäytävien ja kellaritilojen maalaus, 2009 Parvekeovien uusinta, 2010 Autopistokerasiat uusittu, 2011 Asuntojen + yleisten tilojen lukot uusittu (ei lh:t), 2013 Lämpökeskus uusittu, 2013 Jätesuojat hankittu, 2014 Kattomestarit asensivat parvekekatoille vesikourut ja syöksytorvet, 2014 Ulkotikkaiden turvakisko ja kiipeilysuoja, 2014 Ilmastointihormit puhdistettu ja ilmamäärät säädetty, 2015 Pihan autopaikkojen levennys, 2018 Pihan asfaltoinnin paikkaustyöt, 2020-2021 Parvekeremontti ja parvekelasit kaikkiin parvekkeisiin, 2022 Ovipuhelimien uusinta.
  • Tiedossa olevat tulevat korjaukset/remontitPts-suunnitelma 2025-2029: ilmanvaihdon nuohous ja säätö 2025 (päätös tehty), putkiremontin hankesuunnittelu ja hankkeen käynnistäminen 2027, julkisivujen kuntotutkimus 2029.
  • Tontin pinta-ala1208.1
  • Tontin omistusoma

Materiaalitiedot

  • Rakennusmateriaali: betoni
  • Taloyhtiön Kattotyyppitasa
  • Taloyhtiön Katehuopa
  • Keittiön lattiamateriaali: muovi
  • Keittiön seinien materiaali: maalattu
  • Keittion muut varusteet: kiinteät valaisimet
  • Liesi: sähköliesi
  • Jääkaappi ja pakastin: jääkaappi
  • Vessojen lukumäärä1
  • WC:n lattiamateriaali: muovi
  • WC:n seinämateriaali: maalattu
  • WC:n varustus: bidee-suihku

Tietoja palveluista

Yhteystiedot

  • Välittäjän nimiKeskitalo Harri
  • Välittäjän toimiston nimiÄssä Oy LKV Hämeenlinna
  • harri@assalkv.fi
  • Välittäjän matkapuhelinnumero040 749 7171

Sijainti